当前位置:首页检测中心基础知识 │ 量热法测定电机损耗简介

量热法测定电机损耗简介

  • 浏览次数:5608次
  • 发布时间:2017/1/6 16:42:13
  • 作者:ly_yinhe

  在电机内部产生的各类损耗最终都将变成热量,传给冷却介质,使冷却介质温度上升。用测量电机所产生的热量来推算电机损耗的方法,简称量热法。下面本文主要根据国标量热法测定电机的损耗和效率介绍量热法测定电机损耗构成及各损耗求取方法。

量热法——电机损耗构成

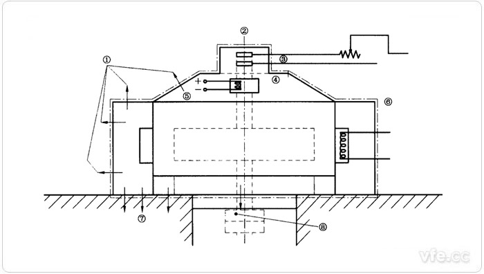
  为了对总损耗进行分类,给电机规定一个基准表面。这是一个将电机全部包在里面的基准表面,这个表面内产生的所有损耗,都通过该表面散发出去(见图1)。

  电机总损耗包括:

  ● 基准表面内损耗Pi;

  ● 基准表面外损耗Pe。

基础表面

图1:基础表面

  1——辐射至墙壁,对流至周围空气;2——控制装置表面;3——励磁;4——推力轴承冷却器;5——冷却空气;6——主冷却器;7——传至基础;8——传至水轮机转子。

  基础表面内损耗可分为两类:

子夜无人免费观看

  式中:

  P1­——以热量的型式由冷却系统带走,并可用量热法测量的损耗。这是基准表面内损耗的主要部分。

  P2——不传递给冷却介质,而以传导、对流、辐射、渗漏等形式通过基准表面散发的损耗。它占总损耗的一小部分,可以用量热法测量,也可以用计算方法求得。

  基准表面外部损耗Pe主要由下列部分的损耗组成:

  a) 在基准表面外部的辅助设备损耗。

  b) 在基准表面外部的轴承摩擦损耗。

量热法——电机损耗测量

01用测量冷却介质流量与温升的方法确定损耗

  电机各部温升达到热稳定后,冷却介质带走的损耗为:

子夜无人免费观看

  式中:

  P1——在基准表面内部,被冷却介质带走的损耗,kW ;

  Cp—冷却介质的比热,KJ/ (Kg*K ) ;

  Q—冷却介质的流量,m³/s;

  ρ——冷却介质的密度,Kg/m³;

  Δt—冷却介质的温升,K。

02未传递给冷却介质的损耗

  A. 由于热传导传到电机基础及轴上的损耗

  热传导传到电机基础及轴上的损耗,这些损耗数量很小,可以忽略不计。

  B. 开启式通风的电机中,由于空气动能变化而带走的损耗

  空气动能变化而带走的损耗,这些损耗很小,其损耗可用下式计算:

子夜无人免费观看

  式中:

  P2——冷却空气动能变化带走的损耗,KW ;

  Q——空气流量,m³/s;

  ρ——空气密度,kg/m³;

  V——出口风速度,m /s。

  C. 电机外表面与周围空气对流和向厂房辐射的损耗

  因为电机表面向厂房的辐射损耗数量很小,可以忽略不计。测量时,只考虑电机外表面与周围空气对流散热的损耗就行。其损耗计算公式为:

  式中:

子夜无人免费观看

  P2——电机外表面散出的损耗,kW ;

  A——散热表面积,㎡;

  Δt——电机外表温度与外部环境温度之差,K;

  h—表面散热系数,W /(㎡*K) 。

  表面散热系数h,一般数值范围在(10-20)W /(㎡*K)之间。与空气接触的表面散热系数 h 的数值,可用以下公式计算:

  1. 对于外表面:

子夜无人免费观看

  式中:

  h——外表面散热系数,W /(㎡*K);

  V——环境空气流速,m/s。

  2. 对于电机外表面内侧的各表面:

子夜无人免费观看

  式中:

  h——内表面散热系数,W /(㎡*K);

  V——冷却空气流速,m/s。

03基准表面外部损耗Pe的求取

  A. 在基准表面外部的辅助设备损耗

  外部辅助设备只包括由被试电机供电的辅助设备,辅助设备的损耗按GB755及相应产品标准规定的试验方法进行测量。若测试条件有困难,允许用计算值代替该项损耗的试验值。

  B. 应计入被试电机中轴承摩擦损耗

  轴承损耗用量热法测量。对于带有水冷却器的轴承其损耗可以用油作为冷却介质来测量,也可以用水作为冷却介质来测量。但因为对水的热特性了解得比较清楚,最好在“油—水”冷却器的水的一侧测量。


Copyright 2010-2017 , All Rights Reserved 子夜无人免费观看 版权所有 湘ICP备09002592号-5